Located in the intellectual capital of the state, IndusPAD is the perfect place for startup businesses, small, medium and large manufacturers. Comprised of 15% offices and 85% manufacturing/warehouse areas, you can feel confident that our location has exactly what your business needs to reach its full potential.This state-of-the-art facility represents a rich history of manufacturing innovation.

The building was originally erected by Malden Mills Industries, later known as Polartec. They dedicated themselves to the market, and to their community, by ensuring their facility was energy efficient and environmentally friendly. By installing an on-site water treatment plant, the Spicket River was restored while reducing waste, gas emissions and chemical use in the production of their fabrics.

EXISTING PHOTOS

PRECEDENT PHOTOS

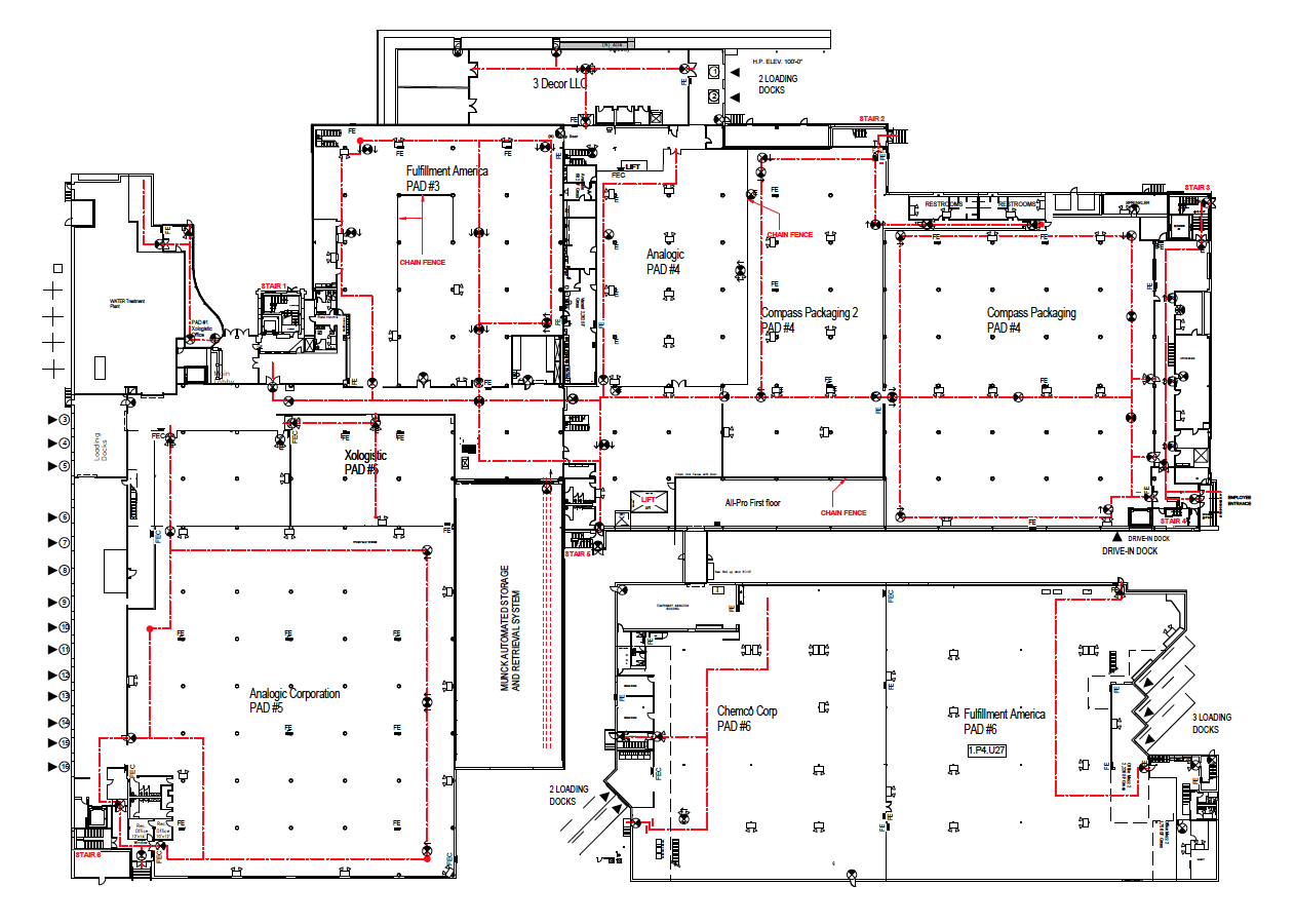
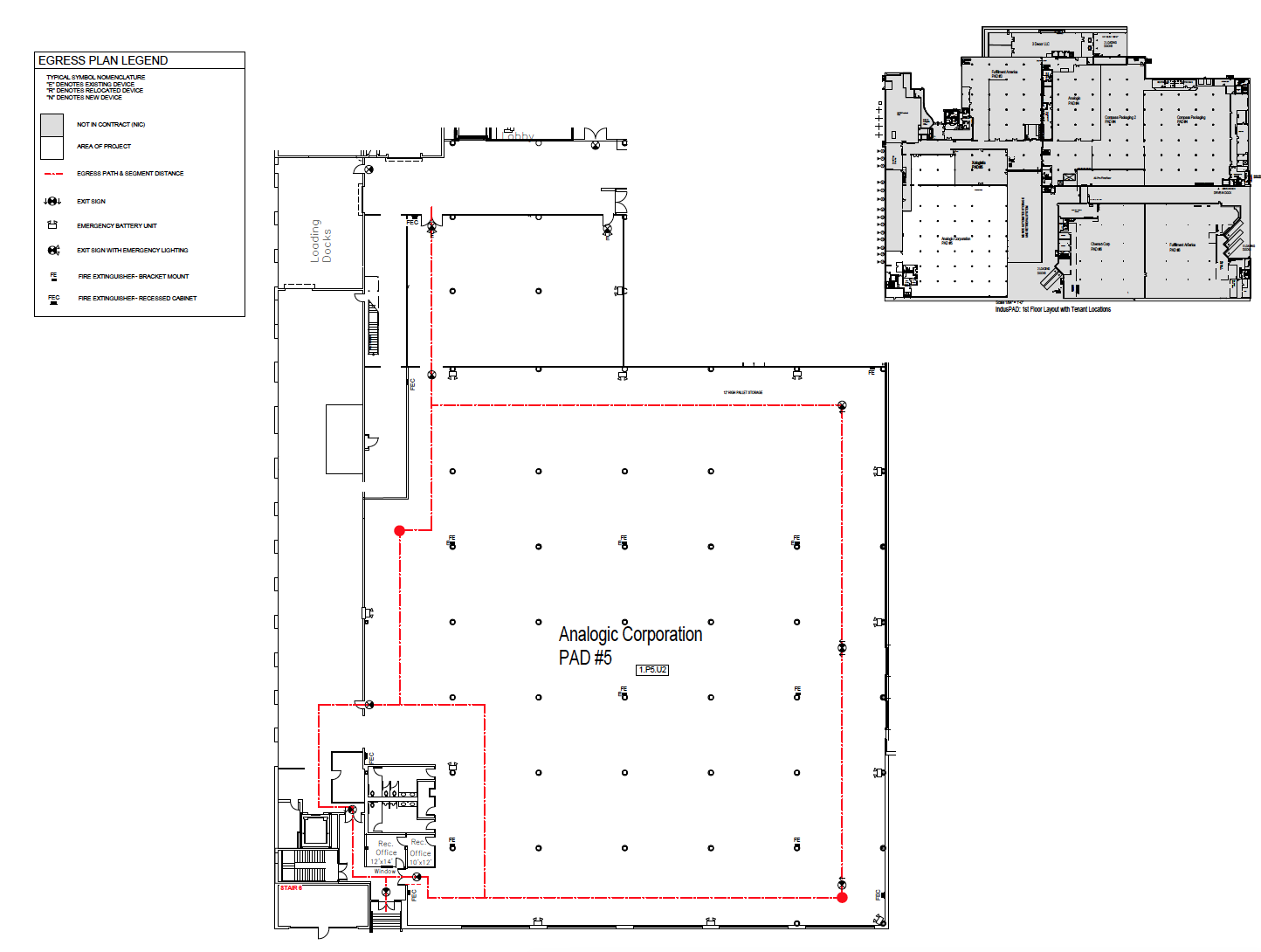
EGRESS PLANS

SIGNAGE GRAPHICS

Previous
Previous

The Record Company

Next
Next

Thesis Project